お問い合わせ・ご相談はお気軽にどうぞ
053-455-0808
Menu
ホーム
買いたい・借りたい
実績紹介
不動産投資
収益不動産の説明
売りたい・相談したい
不動産売却相談の流れ
TAXコンサルティング
コラム
丸八不動産について
事業内容
社長あいさつ
会社概要
Previous Image
Next Image
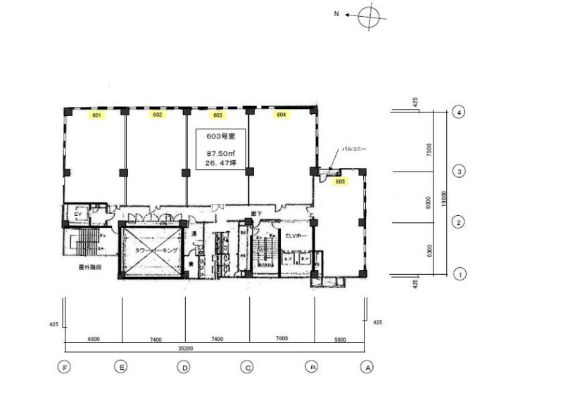
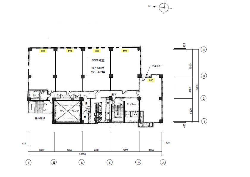
C-603
コメントを残す
コメントをキャンセル
メールアドレスが公開されることはありません。
*
が付いている欄は必須項目です
コメント
*
名前
*
メール
*
サイト
Δ
投稿ナビゲーション
Published in
C-603
物件サーチ
CLOSE